ペットと暮らす、コの字かL字の家
ホーム  >  プラン比較事例  > 

ペットと暮らす、コの字かL字の家

プラン比較事例

ペットと暮らす、コの字かL字の家

お客様からのご要望 ・快適・安全な帰りたくなる家
・リビングでペットとのんびりしたい
・建物をコの字かL字にしたい
・長期優良住宅・省令準耐火の家
お客様の家族構成 ご夫婦+お子様3人 ( 2歳 1歳 1歳)
こだわり ペット
掲載日 2013年08月02日

提案内容

A社 からの提案内容

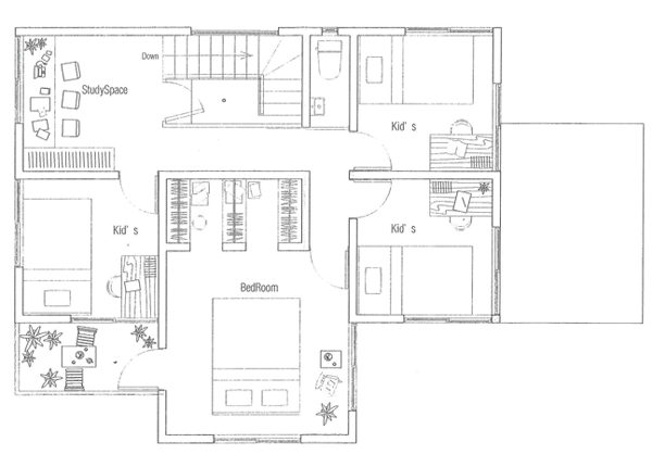
プラン解説

リビングダイニングから見えないようにダイニングキッチンの壁の裏に広いワークスペースがあり洗面脱衣室ともつながるような位置なのでユーティリティとしても使え家事動線が短く機能的です。 2階のスタディスペースに上がるリビング階段にはすべり棒を取り付けてあり遊び心もあります。

面積等

1階施床面積 -㎡ (-坪) 2階床面積 -㎡ (-坪)

B社 からの提案内容

プラン解説

中庭を取り入れたレイアウトで洗面所から中庭のウッドデッキに出られるので直接洗濯物を出せるようになっています。 又浴室の窓がリビングの窓より死角になるような位置にあり視線を感じずに湯船に浸かりながら庭が見えるよう配慮されています。

面積等

1階床面積 74.94㎡(22.67坪) 
2階床面積 70.38㎡ (21.29坪)  
延べ床面積 145.32㎡(43.95坪)

C社 からの提案内容

プラン解説

広いリビングダイニングを中心としたプランです。 洗面脱衣室も広くしてあり洗面化粧台は巾広で後ろ側には家族が多くても充分に足りるように大きな収納もあります。

面積等

1階床面積 66.24㎡ 
2階床面積 63.76㎡ (21.29坪) 
延べ床面積 130.00㎡(39.32坪)

D社 からの提案内容

プラン解説

キッチンの裏に水廻りをレイアウトしてあり洗面脱衣室から家事室を通って外部物干しスペースへ出られなど効率の良いプランです。 リビングにはペットのためのスペースを設けてありウッドデッキへつながります。

面積等

1階施工面積 66.24㎡    
2階施工面積 55.48㎡ 
工事面積 121.72㎡(36.82坪) 
延べ床面積 120.09㎡(36.57坪)

E社 からの提案内容

プラン解説

大きな片流れの屋根に合わせてLDKの天井を屋根勾配にしてあり吹抜けのような開放感を出しています。 L字形のプランで道路より見えずにプライベートな庭が広がっているので安心して子供を遊ばせることが出来そうです。

面積等

1階施床面積 -㎡ (-坪) 2階床面積 -㎡ (-坪)

この事例が気に入った方は
お問合せください

お問合せはこちらへ

お問合せ

すまいポート21への各種お問合せにご利用ください。
(*印は必須入力です)

以下の入力内容でお間違い無いでしょうか?
お間違いの無い場合は「送信する」をクリックしてください。

*店舗名
*ご質問
*E-Mail
*E-Mail(確認用)
*電話番号
*お名前
郵便番号
ご住所

個人情報保護方針に同意の上お進みください

すまいポート21は
日本全国8店舗443社から
施工会社選びをお手伝いします。