掃除が楽でメンテナンスのかからない家
ホーム  >  プラン比較事例  > 

掃除が楽でメンテナンスのかからない家

プラン比較事例

掃除が楽でメンテナンスのかからない家

お客様からのご要望 ・楽しく暮らせる家
・家族の気配が感じられるように
・多忙の為、掃除が楽でメンテナンスのかからない家
お客様の家族構成 40代ご夫婦+お子様3人 [単世帯]
こだわり 子育て家事動線
掲載日 2013年08月02日

提案内容

A社 からの提案内容

プラン解説

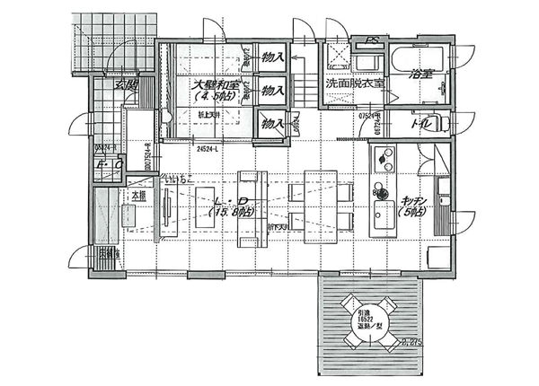
御家族が多いので玄関脇にシューズクロークの設置や洗面脱衣室を広くして洗面化粧台の幅を広くできるようにしてあります。 アイランド型キッチンで LDKから和室までオープンなスぺースとして広さを感じさせるようなプランです。

面積等

1階床面積63.76㎡(19.25坪) 
2階床面積 61.27㎡(18.50坪) 
延床面積 125.03㎡(37.75坪)

B社 からの提案内容

プラン解説

シンプルな外観の中で玄関ポーチ脇にインナーサイクルポートが組み込まれています。 ウッドデッキの上部には大きなバルコニーがありその上にも屋根がかかっているので洗濯物が多くても雨の心配をせずに外出が出来そうです。 アイランド型キッチンより続くダイニングテーブルやスタディコーナーとリビングもキッチンに近いので料理をしていても家族の会話が弾みそう。

面積等

1階床面積69.55㎡ 
2階床面積 55.48㎡ 
延床面積 125.03㎡(37.75坪)

C社 からの提案内容

プラン解説

1階はオープンキッチンでLDKをストレートに配置してリビングの裏にピアノや本棚のスペースがあり雑然とならないようにしてあります。 2階には大きなファミリースペースがあり雨の日でも室内に洗濯物を干したり自由な空間として使えそうです。

面積等

1階床面積62.10㎡(18.78坪) 
2階床面積63.76㎡(19.28坪) 
延床面積125.86㎡(38.06坪)

D社 からの提案内容

プラン解説

玄関脇のシューズクロークやリビングから隠れるようにあるフリースペースなど 各所に収納スペースを設け片付けのしやすい配慮をしながらもコンパクトに納められているプランです。

面積等

1階床面積60.45㎡(18.28坪) 
2階床面積57.13㎡(17.28坪) 
延床面積117.58㎡(35.56坪)

この事例が気に入った方は
お問合せください

お問合せはこちらへ

お問合せ

すまいポート21への各種お問合せにご利用ください。
(*印は必須入力です)

以下の入力内容でお間違い無いでしょうか?
お間違いの無い場合は「送信する」をクリックしてください。

*店舗名
*ご質問
*E-Mail
*E-Mail(確認用)
*電話番号
*お名前
郵便番号
ご住所

個人情報保護方針に同意の上お進みください

すまいポート21は
日本全国8店舗443社から
施工会社選びをお手伝いします。