風通しの良いバリアフリー。和洋折衷な外観。
ホーム  >  プラン比較事例  > 

風通しの良いバリアフリー。和洋折衷な外観。

プラン比較事例

風通しの良いバリアフリー。和洋折衷な外観。

お客様からのご要望 ・日当たりがよく、風通しの良い家
・バリアフリー
・外観は和風かまたは和洋折衷のイメージ
お客様の家族構成 50代ご夫婦+お父様
こだわり 介護・健康
掲載日 2013年08月02日

提案内容

A社 からの提案内容

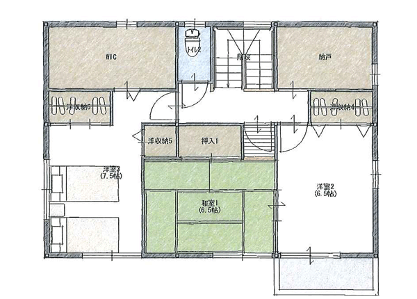
プラン解説

和風のテイストを入れた外観でバルコニーも広いです。 内部は余裕のあるプランで1階の小屋裏も2階ホールより使えるようになっています。 同居者の車いすでの生活がしやすいように外部からの出入りや水廻りに配慮が見られます。

面積等

1階施床面積 89.85㎡(27.18坪)
2階床面積 57.97㎡(17.54坪) 
延べ床面積 147.82㎡(44.72坪)

B社 からの提案内容

プラン解説

キッチンよりダイニングリビング和室と動線が廻り込んでおり尚且つ洗面所にもつながっているという無駄のない動線プランで使い勝手の良さがあります。

面積等

1階施床面積 95.23㎡(28.80坪)
2階床面積 46.37㎡(14.02坪) 
延べ床面積 141.60㎡(42.82坪)

C社 からの提案内容

プラン解説

施主の要望に対して1階をワンルーム+洋間でコンパクトにまとめた機能的なプランです。

面積等

1階施床面積 62.37㎡ (18.86坪)
2階床面積 62.37㎡ (18.86坪) 
延べ床面積 124.74㎡(37.72坪)

この事例が気に入った方は
お問合せください

お問合せはこちらへ

お問合せ

すまいポート21への各種お問合せにご利用ください。
(*印は必須入力です)

以下の入力内容でお間違い無いでしょうか?
お間違いの無い場合は「送信する」をクリックしてください。

*店舗名
*ご質問
*E-Mail
*E-Mail(確認用)
*電話番号
*お名前
郵便番号
ご住所

個人情報保護方針に同意の上お進みください

すまいポート21は
日本全国8店舗443社から
施工会社選びをお手伝いします。