親子2人で暮らす家
ホーム  >  プラン比較事例  > 

親子2人で暮らす家

プラン比較事例

親子2人で暮らす家

お客様からのご要望 ・将来宅地を分筆する可能性を考慮した、建物の配置
・冬暖かく夏涼しく、地震にも強い家
・収納の充実
・地下水の利用
お客様の家族構成 娘、母親
こだわり 収納
掲載日 2021年07月12日

提案内容

A社 からの提案内容

プラン解説

面積等

1F床面積 74.52㎡(22.54坪)  
2階床面積 37.26㎡(11.27坪)  
延床面積 111.78㎡(33.81坪)

B社 からの提案内容

プラン解説

面積等

1F床面積 77.43㎡(23.39坪)  
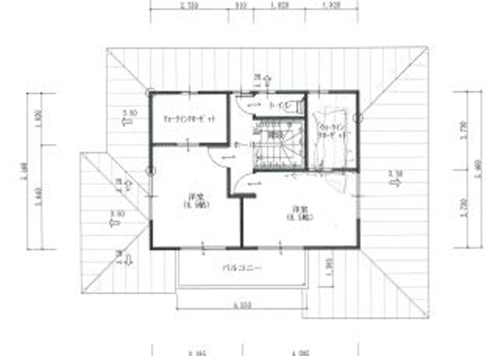
2階床面積 36.44㎡(11.01坪)  
延床面積 113.87㎡(34.40坪) 

C社 からの提案内容

プラン解説

面積等

1F床面積 73.98㎡(22.38坪)  
2階床面積 39.75㎡(12.02坪)  
延床面積 113.73㎡(34.40坪)

この事例が気に入った方は
お問合せください

お問合せはこちらへ

お問合せ

すまいポート21への各種お問合せにご利用ください。
(*印は必須入力です)

以下の入力内容でお間違い無いでしょうか?
お間違いの無い場合は「送信する」をクリックしてください。

*店舗名
*ご質問
*E-Mail
*E-Mail(確認用)
*電話番号
*お名前
郵便番号
ご住所

個人情報保護方針に同意の上お進みください

すまいポート21は
日本全国8店舗443社から
施工会社選びをお手伝いします。