子供が遊びまわれて、プライベートを重視した外構
ホーム  >  施工事例・プランから選ぶ  >  プラン比較事例を検索  > 

子供が遊びまわれて、プライベートを重視した外構

プラン比較事例

事例から
選ぶ

お気に入りを
見つける

お問合せ

設計コンペを開催
or 施工会社ご紹介

※建築予定地を営業エリアとする建築会社からの選択となります。

子供が遊びまわれて、プライベートを重視した外構

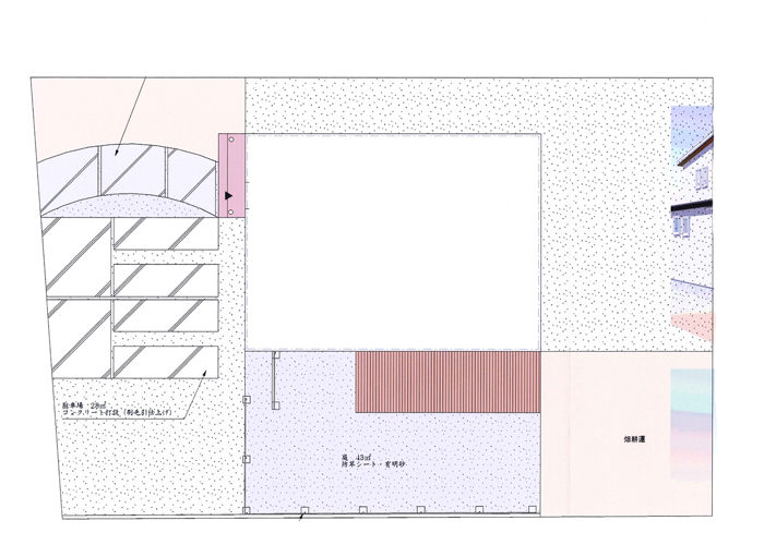
お客様からのご要望 ・目隠しフェンスと庭の整地
・駐車場とシンプルモダンなアプローチの提案
お客様の家族構成 ご夫婦、子供2人
掲載日 2021年06月22日

提案内容

A社 からの提案内容

プラン解説

面積等

B社 からの提案内容

プラン解説

面積等

C社 からの提案内容

プラン解説

面積等

この事例が気に入った方は
お問合せください

お問合せはこちらへ

お問合せ

すまいポート21への各種お問合せにご利用ください。
(*印は必須入力です)

以下の入力内容でお間違い無いでしょうか?
お間違いの無い場合は「送信する」をクリックしてください。

*店舗名
*ご質問
*E-Mail
*E-Mail(確認用)
*電話番号
*お名前
郵便番号
ご住所

個人情報保護方針に同意の上お進みください

すまいポート21は
日本全国8店舗443社から
施工会社選びをお手伝いします。