3世代で住む家
ホーム  >  プラン比較事例  > 

3世代で住む家

プラン比較事例

3世代で住む家

お客様からのご要望 ・シンプルモダンの外観
・すっきりとした内観
・家族それぞれのプライベートが保てる間取り
お客様の家族構成 ご夫婦 お子様2人 お父様
こだわり 二世帯住宅
掲載日 2019年12月09日

提案内容

A社 からの提案内容

プラン解説

面積等

1F床面積 73.90㎡(22.35坪) 
2F床面積 43.48㎡(13.15坪) 
延床面積117.39㎡(35.51坪)

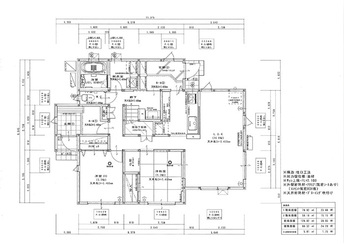
B社 からの提案内容

プラン解説

面積等

1F床面積 78.92㎡(23.88坪) 
2F床面積 50.10㎡(15.15坪) 
延床面積129.02㎡(39.03坪)

C社 からの提案内容

プラン解説

面積等

1F床面積 75.36㎡(22.80坪) 
2F床面積 54.65㎡(16.53坪) 
延床面積130.01㎡(39.33坪)

D社 からの提案内容

プラン解説

1F床面積 70.25㎡(21.25坪) 
2F床面積 41.75㎡(12.63坪) 
延床面積112.00㎡(33.88坪)

面積等

この事例が気に入った方は
お問合せください

お問合せはこちらへ

お問合せ

すまいポート21への各種お問合せにご利用ください。
(*印は必須入力です)

以下の入力内容でお間違い無いでしょうか?
お間違いの無い場合は「送信する」をクリックしてください。

*店舗名
*ご質問
*E-Mail
*E-Mail(確認用)
*電話番号
*お名前
郵便番号
ご住所

個人情報保護方針に同意の上お進みください

すまいポート21は
日本全国8店舗443社から
施工会社選びをお手伝いします。