穏やかな時間を楽しむナチュラルモダン住宅 ― 4社プラン比較の実例
| お客様からのご要望 |
宇都宮本店にご相談いただいたご夫婦の事例です。 穏やかで心地よい日常を大切にしながら、将来の家族も見据えた住まいづくりを希望されました。 「食事はテーブルで、食後は床でくつろげる空間」「リビング続きの和室や書斎コーナー」など、過ごし方を重視したご要望が多く寄せられました。 (※本事例は当時の条件に基づくもので、現在の相場とは異なる可能性がありますが、要望をどう整理し伝えるかの参考としてご覧ください) <お客様からのご要望> ■宇都宮市で約70坪、予算2,200万円で家を建てたい ■食事はテーブルで、食後は床でゴロゴロと過ごせるように ■対面式のキッチン、熱源はIHにしたい ■洗濯物は基本外干しだけど、室内物干しスペースも欲しい ■未来の子どもたちのための部屋を ■家のどこかに書斎コーナーが欲しい ■独立した部屋にもなる、リビング続きの和室 ■軒の出たベーシックな外観。白い壁をイメージ |
|---|---|
| お客様の家族構成 | ご夫婦 |
| こだわり | 収納子育て家事動線 |
| 掲載日 | 2025年11月05日 |
提案内容
A社 からの提案内容
プラン解説
【キッチン・ダイニングの床を下げ、床で過ごす家族と視線を近づける工夫】
食事はテーブルで、食後は床に座って過ごしたいという要望に対して、キッチン・ダイニングの床を下げ、床で過ごす家族と視線が近付くよう工夫された提案です。
北側につながる和室の配置は、南北通風に対する配慮が感じられます。
面積等
1階床面積 65.00㎡(19.66坪)
2階床面積 55.48㎡(16.78坪)
延床面積 120.48㎡(36.44坪)
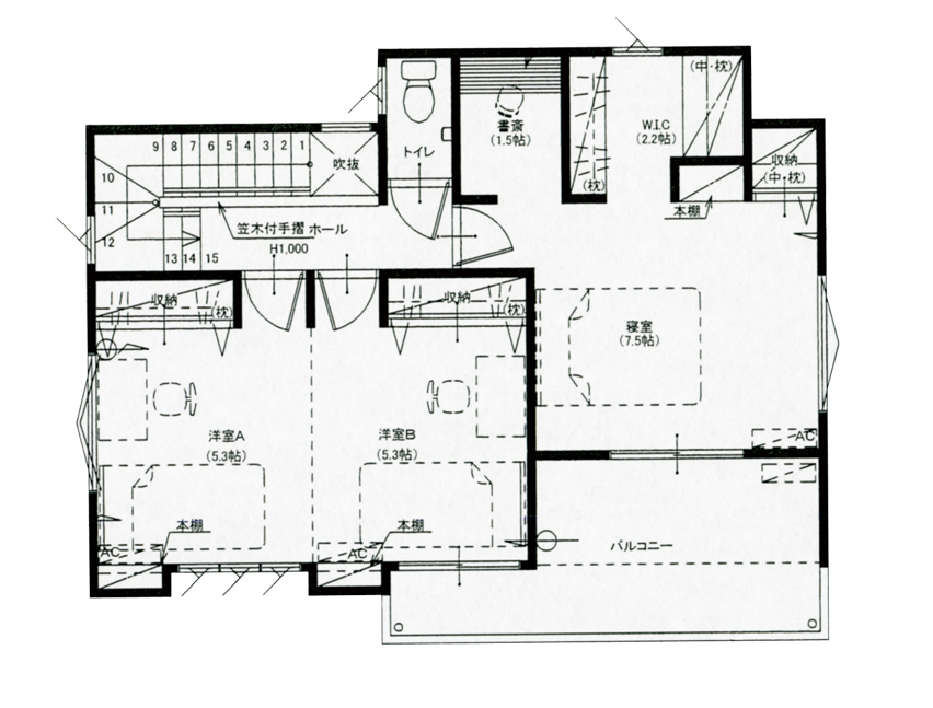
B社 からの提案内容
プラン解説
【独立性の高い中2階の本格的書斎。2階ホールは幅広い利用が可能】
土間収納の上に設けられた中2階の書斎は、独立性の高い本格的な書斎。
十分な広さをもった2階ホールはバルコニーとのつながりも良く、家族で楽しむスペースのほかに室内物干しのスペースとしても使えそうです。
面積等
1階床面積 70.38㎡(21.29坪)
2階床面積 60.03㎡(18.15坪)
延床面積 130.41㎡(39.44坪)
C社 からの提案内容
プラン解説
【グルッと回れる使いやすい動線と土間収納を兼ね備えた勝手口】
キッチンカウンターを中心として、グルッと回れる動線は使いやすさだけでなく、行き止まりがないという楽しさを生み出します。
土間収納を兼ね備えた勝手口は、オープンなキッチンを陰で支えてくれそうです。
面積等
1階床面積 69.27㎡(20.95坪)
2階床面積 48.57㎡(14.69坪)
延床面積 117.84㎡(35.64坪)

できること