自然の力で夏涼しく冬暖かい家
ホーム  >  プラン比較事例  > 

自然の力で夏涼しく冬暖かい家

プラン比較事例

自然の力で夏涼しく冬暖かい家

お客様からのご要望 オール電化、4LDK。
冬暖かく、夏涼しい(自然の力で)。
コミュニケーション重視の設計(リビング・キッチン)


想定建物面積/30~35坪
お客様の家族構成 30代ご夫妻・お子様1人
こだわり 子育て家事動線
掲載日 2013年04月01日

提案内容

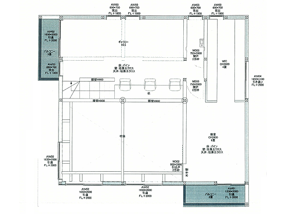
A社 からの提案内容

プラン解説

面積等

B社 からの提案内容

プラン解説

面積等

C社 からの提案内容

プラン解説

面積等

D社 からの提案内容

プラン解説

面積等

この事例が気に入った方は
お問合せください

お問合せはこちらへ

お問合せ

すまいポート21への各種お問合せにご利用ください。
(*印は必須入力です)

以下の入力内容でお間違い無いでしょうか?
お間違いの無い場合は「送信する」をクリックしてください。

*店舗名
*ご質問
*E-Mail
*E-Mail(確認用)
*電話番号
*お名前
郵便番号
ご住所

個人情報保護方針に同意の上お進みください

すまいポート21は
日本全国8店舗443社から
施工会社選びをお手伝いします。