レトロなカフェのような平屋の住まい
| お客様からのご要望 |
・リビングにつながるウッドデッキではバーベキューを楽しみたい ・敷地を生かした平屋の提案 ・アジアのリゾートや鎌倉のカフェのような雰囲気 ・床は段差のないバリアフリー |
|---|---|
| お客様の家族構成 | 30代ご夫婦+お子様3人 [単世帯] |
| こだわり | 介護・健康平屋 |
| 掲載日 | 2015年04月20日 |
提案内容
A社 からの提案内容
プラン解説
リビング等のパブリックスペースと寝室等のプライベートスペースを、中央のデッキスペースでブロック分けをしたプランです。
フリースペースとして提案された子供室は廊下をうまく取り込むことでオープンな空間になりそうです。
面積等
■1階床面積 125.87㎡(38.00坪)
■延床面積 125.87㎡(38.00坪)
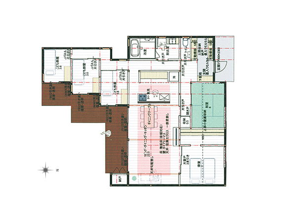
B社 からの提案内容
プラン解説
プライベートスペースをふたつのブロックに分け、パブリックスペースを中央に計画したレイアウトです。
玄関へのスロープの動線計画でエントランスコートとプライベートコートを成立させています。
面積等
■1階床面積 111.59㎡(33.76坪)
■延床面積 111.59㎡(33.76坪)
