光と風が通る和モダンの暖かい家
| お客様からのご要望 |
・外観は和モダン。格子など和のイメージで ・周囲に対する配慮 ・室内も和モダンで色調はダークブラウン ・冬暖かく(重視)、夏涼しいすまい ・生活動線にも配慮 ・スタディコーナー希望。家族のためのパソコンや本棚のコーナー。リビングにつながる中2階のようなスペースを |
|---|---|
| お客様の家族構成 | ご夫婦+お子様1人 |
| こだわり | 家事動線 |
| 掲載日 | 2015年05月21日 |
提案内容
A社 からの提案内容
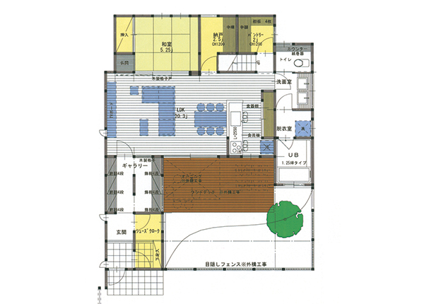
プラン解説
南側にせり出した玄関とギャラリーによって道路からの視線を制御して、リビングに面した庭にプライベート感が生まれてきます。
北側に配置した和室は静かなイメージと南北通風に配慮した提案です。
面積等
□1階床面積 81.98㎡(24.79坪)
□2階床面積 53.41㎡(16.15坪)
□延床面積 135.39㎡(40.95坪)
