趣味を楽しめる使いやすい平屋
ホーム  >  お近くのすまいポート21  >  栃木県  >  すまいポート21宇都宮本店  >  プラン比較事例  > 

趣味を楽しめる使いやすい平屋

すまいポート21宇都宮本店

プラン比較事例

趣味を楽しめる使いやすい平屋

お客様からのご要望 ■平屋
■趣味を楽しめる(絵を飾ったり・・・)
■使いやすい間取り。
■子供たち家族(息子、娘)が帰ってきた時に一緒に過ごす時間が大切
お客様の家族構成 奥様、ご子息
こだわり 家事動線平屋趣味
掲載日 2019年04月30日

提案内容

A社 からの提案内容

プラン解説

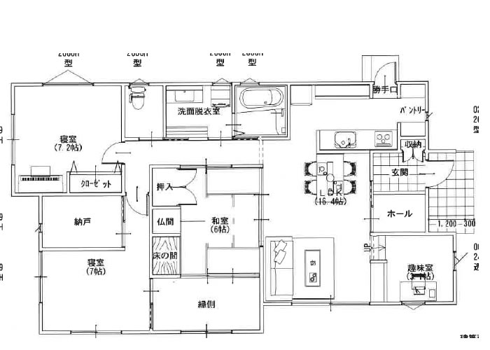
面積等

1階床面積 92.74㎡(28.05坪) 
延床面積  92.74㎡(28.05坪)

B社 からの提案内容

プラン解説

面積等

1階床面積 107.23㎡(32.43坪) 
延床面積  112.62㎡(34.06坪)

C社 からの提案内容

プラン解説

面積等

1階床面積 104.75㎡(31.68坪) 
延床面積  107.23㎡(32.43坪)

D社 からの提案内容

プラン解説

面積等

E社 からの提案内容

プラン解説

面積等

この事例が気に入った方は
お問合せください

お問合せはこちらへ

お問合せ

すまいポート21への各種お問合せにご利用ください。
(*印は必須入力です)

以下の入力内容でお間違い無いでしょうか?
お間違いの無い場合は「送信する」をクリックしてください。

*店舗名
*ご質問
*E-Mail
*E-Mail(確認用)
*電話番号
*お名前
郵便番号
ご住所

個人情報保護方針に同意の上お進みください

店舗名 すまいポート21宇都宮本店
所在地 〒320-0058 栃木県宇都宮市上戸祭2-1-30
営業時間 営業時間/10:00~18:00(水曜日定休)

※季節や天候、また、それに伴う交通機関への影響が予測される場合は店舗の営業日および時間が変更になる場合があります。ご来店いただく際は事前にホームページ等でご確認ください。

連絡先 TEL:028-616-1511 FAX:028-623-5545
アクセス すまいポート21宇都宮へお越しいただく場合は、お車が便利です。
・東北自動車道宇都宮インターから国道199号(日光街道)を宇都宮市内方面へ車で約10分
・JR宇都宮駅からは、東北自動車道宇都宮インター方面へ車で約20分

すまいポート21は
日本全国8店舗452社から
施工会社選びをお手伝いします。