シンプルだけど暮らしやすい工夫がされている家
ホーム  >  お近くのすまいポート21  >  神奈川県  >  すまいポート21アミューあつぎ  >  プラン比較事例  > 

シンプルだけど暮らしやすい工夫がされている家

すまいポート21アミューあつぎ

プラン比較事例

シンプルだけど暮らしやすい工夫がされている家

お客様からのご要望 ●生活感が出ないこと、シンプルだけど暮らしやすい工夫がされていること、大きな窓をつけたい
●凸凹のないシンプルなデザインが希望
●窓枠や家具や照明などのインテリアにこだわりたい。
お客様の家族構成 ご夫婦+お子様(6ヶ月)
掲載日 2017年04月13日

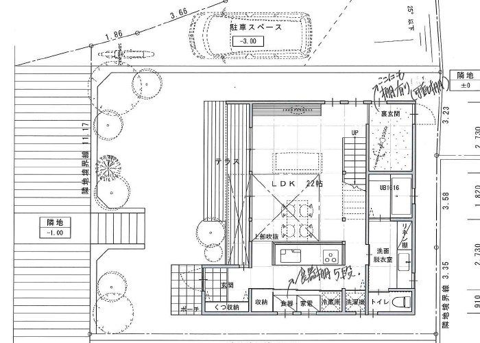
提案内容

A社 からの提案内容

プラン解説

面積等

■1階床面積 38.09m2
■2階床面積 50.72m2
■3階床面積 47.40m2
■延床面積 136.21m2

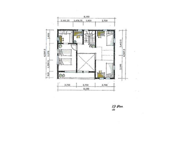
B社 からの提案内容

プラン解説

面積等

■1階床面積 50.51m2
■2階床面積 38.09m2
■延床面積  88.60m2(26.80坪)

C社 からの提案内容

プラン解説

面積等

■1階床面積 15.53坪
■2階床面積 14.52坪
■延床面積  30.05坪

D社 からの提案内容

プラン解説

面積等

■1階床面積 40.57m2
■2階床面積 43.06m2
■延床面積  83.63m2(25.25坪)

E社 からの提案内容

プラン解説

面積等

■1階床面積 57.13m2
■2階床面積 41.40m2
■延床面積  98.53m2(29.75坪)

この事例が気に入った方は
お問合せください

お問合せはこちらへ

お問合せ

すまいポート21への各種お問合せにご利用ください。
(*印は必須入力です)

以下の入力内容でお間違い無いでしょうか?
お間違いの無い場合は「送信する」をクリックしてください。

*店舗名
*ご質問
*E-Mail
*E-Mail(確認用)
*電話番号
*お名前
郵便番号
ご住所

個人情報保護方針に同意の上お進みください

店舗名 すまいポート21アミューあつぎ
所在地 〒243-0018 神奈川県厚木市中町2-12-15
アミューあつぎ3F
営業時間 営業時間/10:00~18:30(年中無休)

※季節や天候、また、それに伴う交通機関への影響が予測される場合は店舗の営業日および時間が変更になる場合があります。ご来店いただく際は事前にホームページ等でご確認ください。

連絡先

フリーダイヤル:0120-129-866

TEL:0120-129-866 FAX:046-240-1299
アクセス 小田急小田原線「本厚木」駅 徒歩5分
◎新宿駅より小田急線急行 (55分) 本厚木駅下車
◎横浜駅より相鉄線利用、海老名駅から小田急線 へ乗換(40分) 本厚木駅下車

Tel:046-240-1298 Fax:046-240-1299

すまいポート21は
日本全国8店舗452社から
施工会社選びをお手伝いします。