生活導線が良く、省エネでホッと落ち着ける家
ホーム  >  お近くのすまいポート21  >  長野県  >  すまいポート21飯田  >  プラン比較事例  > 

生活導線が良く、省エネでホッと落ち着ける家

すまいポート21飯田

プラン比較事例

生活導線が良く、省エネでホッと落ち着ける家

お客様からのご要望 ・ナチュラルで温かみのある内装
・リビングから二階へ上がれるようにしたい
・生活導線を重視したい
・平屋建てか2階建てかは提案にまかせる
お客様の家族構成 ご夫婦(40代・30代)
掲載日 2026年03月30日

提案内容

A社 からの提案内容

プラン解説

面積等

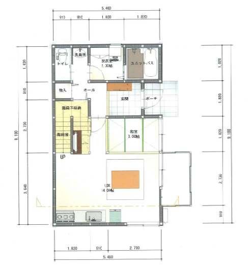
■1階床面積 72.87m2(22.00坪)
■アトリエ(2階)床面積29.81m2(9.00坪)
■延床面積102.68m2(31.00坪)

B社 からの提案内容

プラン解説

面積等

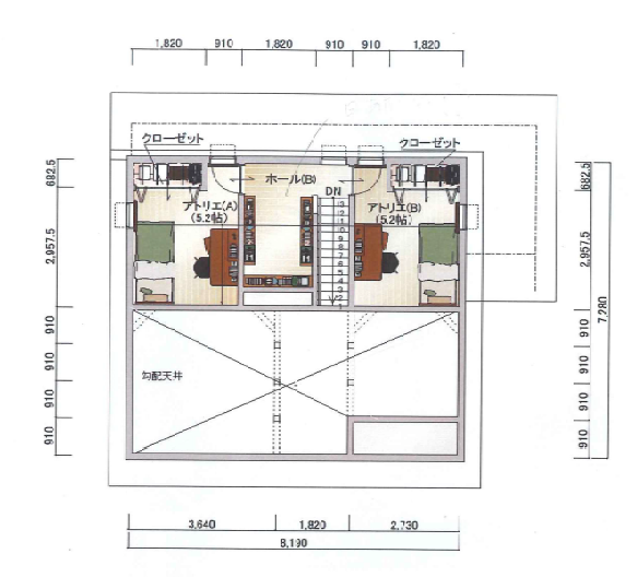
■1階床面積 48.02m2
■2階床面積49.68m2
■延床面積97.70m2

C社 からの提案内容

プラン解説

面積等

■1階床面積 78.66m2(23.77坪)
■2階床面積29.81m2(9.01坪)
■延床面積108.47m2(32.77坪)

この事例が気に入った方は
お問合せください

お問合せはこちらへ

お問合せ

すまいポート21への各種お問合せにご利用ください。
(*印は必須入力です)

以下の入力内容でお間違い無いでしょうか?
お間違いの無い場合は「送信する」をクリックしてください。

*店舗名
*ご質問
*E-Mail
*E-Mail(確認用)
*電話番号
*お名前
郵便番号
ご住所

個人情報保護方針に同意の上お進みください

店舗名 すまいポート21飯田
所在地 〒395-0003 長野県飯田市上郷別府1697-5
営業時間 営業時間/09:00~18:00(火・水曜日定休)

※季節や天候、また、それに伴う交通機関への影響が予測される場合は店舗の営業日および時間が変更になる場合があります。ご来店いただく際は事前にホームページ等でご確認ください。

連絡先 TEL:0265-59-8021 FAX:0265-59-8221
アクセス すまいポート21飯田へお越し頂く場合はお車が便利です。
国道153号沿い 飯田市上郷の「高屋」信号の北側です。

飯田ICからは、アップルロードを通り座光寺へむかい6km、約10分です。

すまいポート21は
日本全国8店舗444社から
施工会社選びをお手伝いします。