ビリヤードができる家
ホーム  >  お近くのすまいポート21  >  長野県  >  すまいポート21飯田  >  プラン比較事例  > 

ビリヤードができる家

すまいポート21飯田

プラン比較事例

ビリヤードができる家

お客様からのご要望 ・洋風  ・耐震等級2以上 ・子供部屋2  ・収納多く
・夫婦共通の趣味はビリヤード 
・猫1匹飼っている
・将来太陽光設置希望
お客様の家族構成 夫婦(20代) 子1人(0歳)
こだわり ペット収納趣味
掲載日 2019年11月25日

提案内容

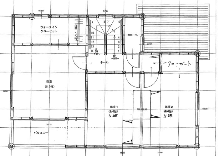
A社 からの提案内容

プラン解説

面積等

1F 56.31㎡(17.01坪) 
2F 49.27㎡(14.89坪)  
延床面積 105.58㎡(31.90坪)

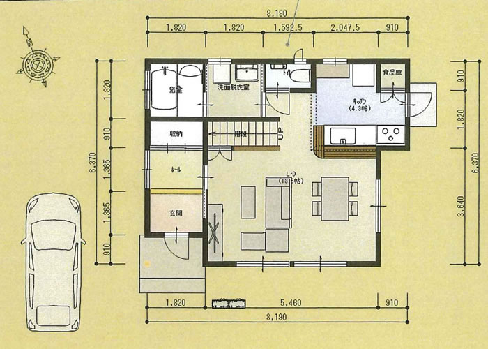
B社 からの提案内容

プラン解説

面積等

1F床面積 81.47㎡(24.61坪) 
2F床面積 43.47㎡(13.13坪) 
延床面積 124.94㎡(37.74坪)

C社 からの提案内容

プラン解説

面積等

平屋 1F床面積 99.37㎡ (30.05坪)

D社 からの提案内容

プラン解説

面積等

1F床面積 47.20㎡(14.28坪) 
2F床面積 43.06㎡(13.03坪) 
延床面積 90.26㎡(27.31坪)

この事例が気に入った方は
お問合せください

お問合せはこちらへ

お問合せ

すまいポート21への各種お問合せにご利用ください。
(*印は必須入力です)

以下の入力内容でお間違い無いでしょうか?
お間違いの無い場合は「送信する」をクリックしてください。

*店舗名
*ご質問
*E-Mail
*E-Mail(確認用)
*電話番号
*お名前
郵便番号
ご住所

個人情報保護方針に同意の上お進みください

店舗名 すまいポート21飯田
所在地 〒395-0003 長野県飯田市上郷別府1697-5
営業時間 営業時間/09:00~18:00(火・水曜日定休)

※季節や天候、また、それに伴う交通機関への影響が予測される場合は店舗の営業日および時間が変更になる場合があります。ご来店いただく際は事前にホームページ等でご確認ください。

連絡先 TEL:0265-59-8021 FAX:0265-59-8221
アクセス すまいポート21飯田へお越し頂く場合はお車が便利です。
国道153号沿い 飯田市上郷の「高屋」信号の北側です。

飯田ICからは、アップルロードを通り座光寺へむかい6km、約10分です。

すまいポート21は
日本全国8店舗443社から
施工会社選びをお手伝いします。